UNIDADES DE SAÚDE EM EXECUÇÃO
A Câmara Municipal de Lisboa incumbiu a Lisboa Ocidental SRU da construção de 14 novos centros de saúde. Com um investimento total de cerca de 50 milhões de euros, visa num futuro próximo beneficiar mais de 305 mil utentes na cidade de Lisboa.
Os novos centros de saúde serão dotados de equipamento que permitirá ao utente (além das valências já adotadas atualmente) realizar exames complementares de diagnóstico (análises laboratoriais) e medicina dentária, fortalecendo a rede de cuidados de saúde primários.
Conheça as Unidades de Saúde que se encontram em execução.
UNIDADE DE SAÚDE DA AJUDA
A nova Unidade de Saúde Familiar da Ajuda situar-se-á numa parcela de terreno que confina com a Rua Nova do Calhariz e com a Calçada da Boa Hora, junto ao Mercado da Boa-Hora, na Freguesia da Ajuda, tendo por base uma população de 11.400 utentes.
Sendo uma construção nova que albergará a Unidade de Saúde (US) e Unidade de Recursos Assistenciais Partilhados (URAP), a implantação contempla a libertação de um espaço interior intermédio, proposto como pátio exterior semi-coberto, onde ficará afecta a área exterior da sala de mobilidade.
Tem assim como maior preocupação dar cumprimento ao programa funcional enquadrado pelas intenções urbanísticas para o local, respondendo às exigências deste tipo de equipamento de saúde e procurando propor uma nova forma/volumetria, que se destaque pela sua qualidade arquitectónica e sobretudo integração urbana.
Quanto ao enquadramento paisagístico, houve uma especial atenção em procurar aproveitar os espaços verdes existentes de qualidade, preservando a maioria das espécies arbóreas existentes, integrando-os com a nova solução do edifício.

POSTO DE LIMPEZA PROVISÓRIO
A construção da nova Unidade de Saúde da Ajuda no terreno junto ao Mercado da Boa-Hora, obrigou à deslocalização do Posto de Limpeza aí situado. Por isso, está em curso uma empreitada para construção do Posto de Limpeza Provisório, situado junto ao Bairro 2 de Maio.
Este posto será constituído por monoblocos de 1 piso, e terá todas as infraestuturas necessárias para manter o funcionamento normal do posto, até à conclusão do posto definitivo, que será construído na Rua Roy Campbell, e cujo concurso de empreitada se encontra a decorrer.
UNIDADE DE SAÚDE DO RESTELO
A futura Unidade de Saúde Familiar do Restelo, terá uma capacidade de resposta para 15.200 utentes, integrando uma Unidade de Saúde (US) e uma Unidade de Recursos Assistenciais Partilhados (URAP).
A definição de uma área disponível para ocupação, determinou a solução de um volume único, que poisa sobre o terreno aproveitando as diferenças de cota para criar um piso superior onde se distribuem as zonas de consultas e tratamentos acessíveis aos utentes. O núcleo de entrada divide as duas unidades, a US e a URAP, em duas alas de atendimento distintas proporcionando uma melhor organização espacial.
A planta em forma de “arco” resulta da implantação proposta pelo PU, permitindo encaixar o edifício de forma harmoniosa no terreno. Esta forma permite ainda que todos os compartimentos do nível superior usufruam de luz natural.
O edifício tem uma geometria clara e uma identidade própria facilmente reconhecível pelo exterior. Nas fachadas o ritmo marcado pelos panos de vidro em contraste com os planos cegos é acentuado por lâminas verticais, orientadas de forma a proteger os vãos da excessiva exposição solar.
POSTO DE LIMPEZA PROVISÓRIO
À semelhança do sucedido com US da Ajuda, também a construção da nova Unidade de Saúde do Restelo obrigou à deslocalização do Posto de Limpeza da freguesia. Está em curso a empreitada para construção do Posto de Limpeza Provisório, situado num terreno em frente à localização atual, e que terá entrada pela Rua Carlos Calisto.
Este posto será constituído por monoblocos de 1 piso, e terá todas as infraestuturas necessárias para manter o funcionamento normal do posto, até à conclusão do posto definitivo, que será construído na Rua Conselheiro Martins de Carvalho, junto ao Cemitério da Ajuda, e cujo concurso de empreitada se encontra a decorrer.

UNIDADE DE SAÚDE DE MARVILA
A proposta de intervenção na Azinhaga dos Alfinetes em Marvila, tem como objetivo a instalação da nova Unidade de Saúde Familiar, ponderada para uma população de 22.800 utentes.
O local é por si fortemente marcante pela pré-existência do Palácio da Quinta dos Alfinetes. O edifício de traça Barroca final, é um raro exemplar Lisboeta deste estilo, considerando que com o terramoto de 1755, poucos foram os edifícios que mantiveram esta traça.
A intervenção teve como premissa a salvaguarda dos elementos mais significativos, optando por não comprometer a sua componente estrutural original, respeitando a sua matriz de ruína, e permitir que a nova proposta não assuma um papel de maior destaque face à riqueza arquitetónica do palácio principal, e ao mesmo tempo valorize a memória espacial do local.
É assim proposto uma primeira área de acolhimento existente na frente do palácio, onde um conjunto de novos volumes fazem a articulação e distribuição para as áreas públicas e de consultas da nova Unidade de Saúde. Esse novo volume com 2 pisos, onde acolhe a receção/front-office e zona de espera e integra as circulações verticais compostas por núcleo de escadas e elevador. Num segundo plano, após a transposição das fachadas existentes, desenvolve-se o edifício principal de dois pisos, integra no piso térreo a US 1 e parte da US2 e URAP, e no piso superior a US2, UCC e Apoio Geral.
UNIDADE DE SAÚDE DO ALTO DOS MOINHOS
Situada na Rua Cidade de Rabat (entre os números 37 e 41) e com uma área bruta de construção de 1.052 m2, esta é uma unidade de saúde estruturante e vai localizar-se numa zona servida por uma vasta rede de transportes públicos e boas ligações aos eixos viários existentes.
Com o intuito de dar resposta a mais de 15 mil utentes residentes na freguesia de São Domingos de Benfica, para além de todos os serviços existentes na Unidade de Saúde, terá igualmente uma Unidade de Recursos Assistenciais Partilhados (URAP) que disponibilizará entre outros consultas de Nutrição, Psicologia, Saúde Oral e Terapia da Fala.
O edifício projetado pela Arq.ª Isabel Pessoa virá colmatar uma necessidade premente da freguesia. Do projeto destaca-se o cuidado com a acessibilidade pedonal, com acesso privilegiado pela estação de metro do Alto dos Moinhos, localizando-se a entrada principal a Norte. O acesso a Sul é marcado por uma composição minimal de muros, que ajudam a formalizar a fachada permitindo o acesso pedonal e a "descoberta" do próprio edifício, e que são amenizados por um jardim.
UNIDADE DE SAÚDE FONTE NOVA
O projecto para a nova Unidade de Saúde do Fonte Nova é, em primeiro lugar, um projeto urbano, com um carácter eminentemente público, e cuja proposta assenta nos seguintes princípios orientadores: integração, identidade e funcionalidade, e valoriza a proximidade e interligação com os espaços exteriores e, dessa forma, também com a comunidade a que se destina.
Com entrada pela Rua Tenente Coronel Ribeiro dos Reis, e capacidade para ---- utentes, o edifício da nova Unidade de Saúde (US), terá também uma Unidade de Recursos Assistenciais Partilhados (URAP) que permitirá aumentar a oferta existente ao nível da promoção da saúde, prevenção da doença e prestação de serviços especializados adequados às necessidades da população, como sejam consultas de Nutrição, Psicologia, Saúde Oral, Terapia da Fala, entre outras.
Toda a frente do edifício será formalizada com as salas de espera, cujas fachadas são desenhadas de uma forma aberta, pública e comunicativa.
A entrada de serviço/abastecimentos é situada na parte lateral/tardoz do edifício, permitindo uma total separação de circuitos e a total descrição nas entradas e saídas de cargas e descargas, lixos.
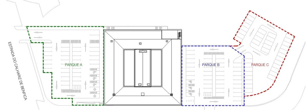
Serão criadas duas zonas de estacionamento - Parque A, acedida pela estrada do Calhariz de Benfica e Parque B, acedida através da Rua Tenente Coronel Ribeiro dos Reis.
Existe ainda uma terceira zona, Parque C, que se limita a uma zona de estacionamento atualmente existente e que não faz parte da intervenção.



















